Waldwasser Moos

Sanierung Schaltwarte TWA Max Binder - Flanitz

Karl-Knon Manuela

Sanierung Wohngebäude mit Ergänzung Energieversorgung

Waldwasser Moos

Neubau Fahrzeughalle und Elektrowerkstatt sowie Lager und Sanierung Schlosserei sowie Erneuerung Brandmeldeanlage

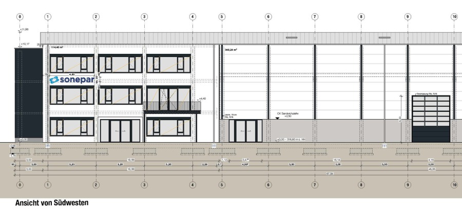
KM Grundstücksverwaltungs GmbH

Neubau Büro- und Lagergebäude Irlwiesen

Waldwasser Moos

TWA Max Binder - Flanitz - Sanierung Filterhallen und Heizung

BRK Kreisverband Deggendorf

Josefsheim Plattling - Umbau Rettungswachen - WLan-Verkabelung

Waldwasser Moos

Sanierung Labore TWA Max Binder - Flanitz

AK Imovina AG

Umbau und Sanierung Geschäftshaus Veilchengasse 2

Erweiterung Bürogebäude Max-Peinkofer-Straße 15

Renate und Eduard Eigenschenk

BRK Kreisverband Deggendorf

Erneuerung der Stromversorgungskonzepte

Waldwasser Moos

Sanierung Sicherheitstechnik TWA Max Binder - Flanitz

Dichtungstechnik Wallstabe  Schneider GmbH & Co.KG

Niederwinkling

Neubau Laborgebäude

Stadt Deggendorf

Umbau Stadtmuseum Deggendorf

Waldwasser Moos

Sanierung Pumpwerk Viechtach

AM Immobilien GmbH

Neubau Boardinghouse Plattling

Markt Winzer

Nachnutzung Korbfarbik - Mosler-Haus

Hauptschützengesellschaft Deggendorf von 1428 e.V.

Neubau des Schützenhauses

Eterna Mode GmbH Passau

Umbau Büroflächen

Gemeinde Fürstenstein

Umbau und Erweiterung Kindergarten Fürstenstein

Karl Gruppe

Neubau Wohnhaus Steinbruchweg