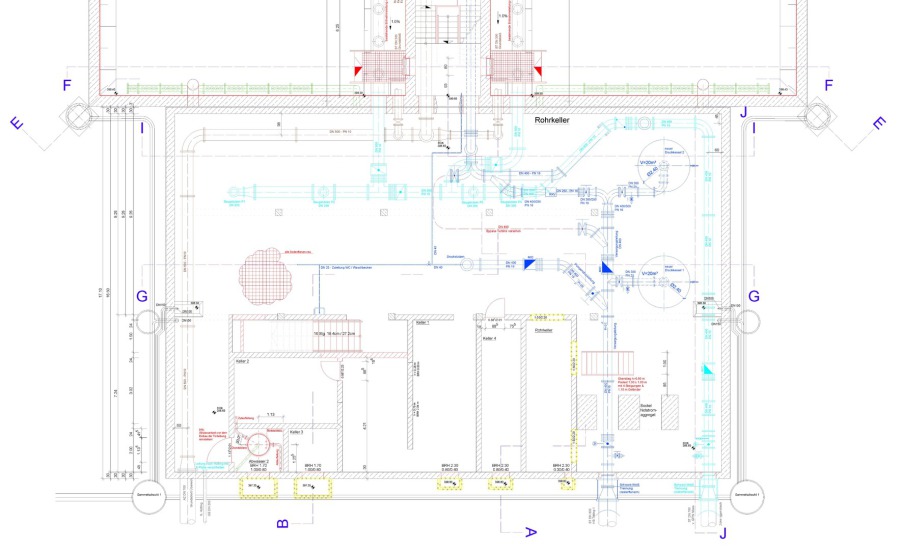
Gesamtsanierung Hochbehälter Iggensbach

Waldwasser Moos

Planung von Januar 2025 bis Dezember 2026

Sanierung Wohngebäude mit Ergänzung Energieversorgung

Karl-Knon Manuela

Planung von November 2022 bis Mai 2025

Errichtung PV-Eigenverbrauchsanlagen

Wäscherei Plattling - Seniorenzemtrum Perlasberg - Kreisverband Wiesenstraße - Pflegeheim Stadtfeldstraße - Pflegeheim Osterhofen

BRK Kreisverband Deggendorf

Planung von Januar 2023 bis Juni 2025

Neubau Fahrzeughalle und Elektrowerkstatt sowie Lager und Sanierung Schlosserei

Waldwasser Moos

Planung von November 2011 bis Mai 2025

Neubau Büro- und Lagergebäude Irlwiesen

KM Grundstücksverwaltungs GmbH

Planung von März 2022 bis Mai 2025

Revitalisierung der Gesamtanlage TWA Max Binder - Flanitz

Waldwasser Moos

Planung von Januar 2022 bis Dezember 2025

Sanierung Schaltwarte TWA Max Binder - Flanitz

Waldwasser Moos

Planung und Ausführung von Oktober 2020 bis Juni 2025